Khi những phong cách thiết kế hay trang trí căn hộ ngày càng phong phú, đa dạng đến mức có thể gây phân vân, thì 2 màu trắng đen đi cùng nhau sao cho hòa quyện và sang trọng là chọn lựa đáng tham khảo.
Thông thường những không gian dùng thuần màu trắng hay đen sẽ gây ấn tượng mạnh bởi tính nhất quán và sự đồng bộ. Khi bước chân vào một không gian sống toàn trắng hoặc toàn đen, dễ cảm nhận sự thuần khiết hay vẻ sang trọng, nhưng cũng có thể gợi chút hoài nghi về vẻ đơn điệu hay tính áp chế. Dùng trắng và đen do đó không khó nhưng chắc chắn không dễ.
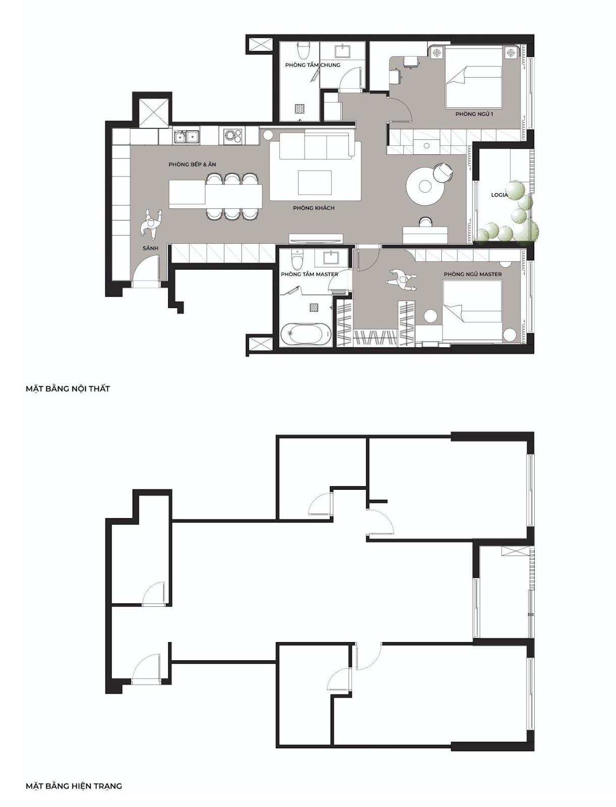
Ở dự án căn hộ tại Hải Phòng này, trắng và đen đã không còn là 2 sắc độ đối nghịch với nhau, mà được phối trộn, sử dụng như một thể thống nhất. Như ngày và đêm, sáng và tối, rực rỡ hay huyền bí… trắng và đen qua thủ pháp và chất liệu, mảng khối và ánh sáng đã được kết hợp cùng nhau để hướng tới mục tiêu: tạo nên góc sống thoải mái, tiện nghi và trang nhã.
Trắng và đen trong nội thất căn hộ này cũng không phải kiểu chia ô bàn cờ vua bên trắng bên đen rạch ròi mà với những thang độ xám tiếp nối dịu nhẹ, đã giúp làm nền hay làm điểm nhấn phù hợp tùy chỗ. Cho nên ngoài các phòng riêng tuân theo khuôn khổ cấu trúc, đa số không gian sử dụng không còn sự phân định giới hạn quá rõ, mà được liên kết trôi chảy, khúc chiết. Có thể thấy ở đây thông qua cách dùng trắng và đen, một thiết kế có nhịp điệu, kéo dài hay kết thúc khéo léo đã mang lại kết nối thị giác khá hiệu quả.
